fr

Votre recherche

Accord
Nouveauté
Royat (63130)

3 pièces - 77,43 m²

Appartement 77 m² avec terrasse, garage et vue Puy de Dôme – Résidence de standing « Les Rochettes », Royat

235 000 €
Ref : 1832VH
Découvrir le bien

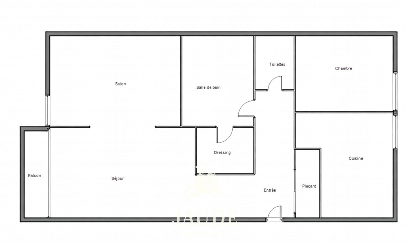
JAUDE Immobilier vous propose cet appartement F2 bis de 77 m², situé au 2ᵉ étage/4 avec ascenseur de la résidence de standing « Les Rochettes » à Royat. Niché au cœur d’un parc arboré soigneusement entretenu avec piscine chauffée, ce bien offre un cadre de vie rare, entre nature, calme et prestations de qualité.

Dès l’entrée (9 m²), la luminosité s’impose grâce à une double exposition Est-Ouest. L’espace de vie s’organise harmonieusement avec, d’un côté, un double séjour de 33 m² et, de l’autre, une cuisine indépendante de 11 m².
La terrasse de 7 m² prolonge agréablement les espaces de vie et permet de profiter pleinement d’un environnement verdoyant ainsi que d’une vue panoramique sur le Puy de Dôme, sans vis-à-vis.

Cet agencement offre un fort potentiel d’évolution, avec la possibilité de recréer facilement une seconde chambre, transformant ainsi le bien en véritable T3 sans compromettre le confort de vie.

Côté nuit, une chambre spacieuse (12,6 m²) s’accompagne d’une salle de bain (6 m²) ouverte sur un dressing (3 m²). Un WC séparé complète l’ensemble.

En rez-de-chaussée, accessible directement depuis l’immeuble, vous bénéficiez d’un garage fermé avec cave d’une surface de 17 m², équipé d’une porte motorisée.

Points forts :

- Résidence de standing avec parc arboré et piscine chauffée

- Vue panoramique sur le Puy de Dôme, sans vis-à-vis

- Belle luminosité grâce à la double exposition Est-Ouest

- Espace de vie de plus de 33 m²

- Fort potentiel avec transformation possible en T3

- Terrasse de 7 m²

- Garage fermé avec cave (17 m²)

Environnement calme et recherché

Situé à Royat, dans la résidence « Les Rochettes », ce bien bénéficie d’un emplacement privilégié, alliant tranquillité résidentielle et proximité des commodités, aux portes de Clermont-Ferrand.

- Chauffage électrique par plancher au sol collectif complété par des convecteurs individuels.
- Double vitrage aluminium.
- Eau chaude par ballon électrique (100 L).

Informations pratiques :

- Année de construction : 1979

- Classe énergétique : D (nouvelle réglementation).
Coûts estimés entre 1 520 € et 2 100 € par an pour une utilisation standard (chauffage, eau chaude, climatisation, éclairage, auxiliaires).

Bien soumis au statut de copropriété :

- Charges annuelles de copropriété : 3589€ soit 299€/mois (comprenant charges courantes, ascenseur, espaces verts, piscine et eau)

- Taxe foncière : 1 894 €

- Nombre de lots principaux: 41

- Aucune procédure en cours

Honoraires agence à la charge du vendeur

Pour plus d’informations sur les risques auxquels ce bien est exposé, consultez le site Géorisques : www.georisques.gouv.fr (décret n°2022-1289 du 1er octobre 2022).

Pour toute information ou visite,
Véronique Hutin Négociatrice & Associée JAUDE Immobilier
06 86 17 11 33 - v.hutin@jaudeimmobilier.fr

TRAD_ZEPHYR_Caracteristique TRAD_ZEPHYR_Valeurs
Code postal 63130
Surface loi Carrez (m²) 77,43 m²
Nombre de chambre(s) 1
Nombre de pièces 3
Etage 2
Nombre de niveaux 1
Ascenseur OUI
Vue Vue dégagée
TRAD_ZEPHYR_Caracteristique TRAD_ZEPHYR_Valeurs
Nb de salle de bains 1
Cuisine Séparée
Type de cuisine Equipée
Mode de chauffage Electrique, Electrique
Type de chauffage Au sol, Convecteur
Format de chauffage Collectif, Individuel
Interphone OUI
Terrasse OUI
Nombre de garage 1
Cave OUI
Exposition Ouest
Année de construction 1979
TRAD_ZEPHYR_Caracteristique TRAD_ZEPHYR_Valeurs
Copropriété OUI
nombre de lots 41
Quote Part annuelle des charges 3 589 €
plan de sauvegarde NON
statut du syndic pas de procédure en cours
TRAD_ZEPHYR_Caracteristique TRAD_ZEPHYR_Valeurs
Prix de vente 235 000 €
Les honoraires d'agence seront intégralement à la charge du vendeur  
Charges 299 €
Taxe foncière annuelle 1 834 €
Etage 2
entrée 9.07 m²

salon/sejour 33.02 m²

chambre 12.6 m²

cuisine 10.97 m²

salle de bain 6.64 m²

dressing 2.97 m²

WC 2.16 m²

Rez de chaussée
garage 17 m²

DPE GES
  • Commerces et santé
  • Loisirs
  • Ecoles
  • Transports
  • Pratique
Contacter pour ce bien
L'agence
Téléphone 0473291676
Adresse
46 place de Jaude 63000 Clermont-Ferrand

* Champ obligatoire

Les informations recueillies sur ce formulaire sont enregistrées dans un fichier informatisé par La Boite Immo agissant comme Sous-traitant du traitement pour la gestion de la clientèle/prospects de l'Agence / du Réseau qui reste Responsable du Traitement de vos Données personnelles. La base légale du traitement repose sur l'intérêt légitime de l'Agence / du Réseau. Elles sont conservées jusqu'à demande de suppression et sont destinées à l'Agence / au Réseau. Conformément à la loi « informatique et libertés », vous disposez des droits d’accès, de rectification, d’effacement, d’opposition, de limitation et de portabilité de vos données. Vous pouvez retirer votre consentement à tout moment en contactant directement l’Agence / Le Réseau. Consultez le site https://cnil.fr/fr pour plus d’informations sur vos droits. Si vous estimez, après avoir contacté l'Agence / le Réseau, que vos droits « Informatique et Libertés » ne sont pas respectés, vous pouvez adresser une réclamation à la CNIL. Nous vous informons de l’existence de la liste d'opposition au démarchage téléphonique « Bloctel », sur laquelle vous pouvez vous inscrire ici : https://www.bloctel.gouv.fr Dans le cadre de la protection des Données personnelles, nous vous invitons à ne pas inscrire de Données sensibles dans le champ de saisie libre.
Ce site est protégé par reCAPTCHA, les Politiques de Confidentialité et les Conditions d'Utilisation de Google s'appliquent.

Découvrir nos outils